Ростов-на-Дону, Западный, Таймс,жилой комплекс
Обзор квартиры в "ЖК TIMES"
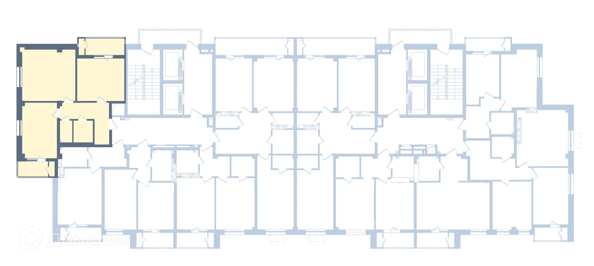
Предлагается 2-комнатная квартира в современном жилом комплексе "ЖК TIMES" 🏢.
Квартира расположена на 16-м этаже 14-этажного дома.
Прекрасный выбор для инвестиций.
Продуманная планировка
- ✅ Общая площадь: 74.6 м².
- ✅ Просторная жилая площадь: 37.8 м².
- ✅ Кухня: 15.3 м² — идеальна для семейных ужинов.
Преимущества квартиры
- 🔧 Вариант отделки: без ремонта. Это позволит вам сразу приступить к ремонту.
- 🌞 Большие окна наполняют помещения естественным светом.
- 🌿 Класс жилья: Бизнес — благоустроенная территория.
Финансы и ипотека
- 💳 Ипотека от 95 782 руб/мес.
- 🏦 Подходит под семейную и IT ипотеку.
- 🤝 Безопасная сделка гарантирует спокойствие.
Для бесплатного бронирования и зафиксировать цену — позвоните нам прямо сейчас! 📞
Характеристики новостройки в ЖК TIMES
- Номер квартиры: 163
- Вариант отделки: без ремонта
- Общая площадь: 74.6 м²
- Жилая площадь: 37.8 м²
- Площадь кухни: 15.3 м²
- Класс жилья: Бизнес
- Количество комнат: 2-комнатная квартира
- Этаж: 16
- Этажность дома: 14
Полезная информация о ЖК TIMES