Ростовская область, Таганрог, улица Сергея Шило, 265д лит1
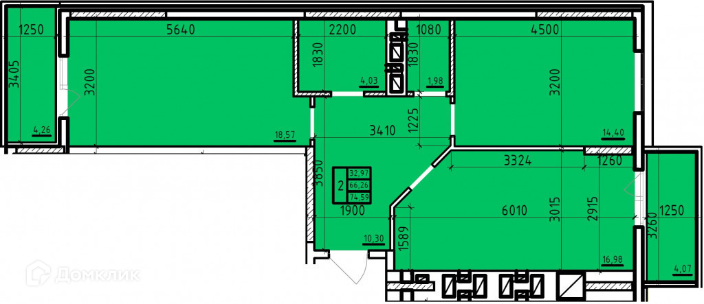
Площадь
Жилая
Кухня
Отделка
Класс жилья
Комнат
Номер кв.
Этаж
Продается 2-комнатная квартира в новом жилом комплексе "ЖК Чеховский" 🏢. Квартира расположена на 3-м этаже 14-этажного дома. Отличный вариант для семьи.
Чтобы узнать подробности и проверить актуальную стоимость — свяжитесь с нами прямо сейчас! 📞
ЖК "Чеховский" - расположен в одном из самых лучших районов г. Таганрога. Рядом с комплексом расположены множество магазинов, ТЦ, а также школы, садики и многое другое. В данном комплексе квартиры оснащены своим автономным отоплением, в квартирах так же установлены все счетчики на газ, воду, электроэнергию, выполнены работы по стяжке, штукатурке, разводке электрики и системы отопления по всей квартире, в том числе системы ТЕПЛЫЕ ПОЛЫ, так же установлены энергосберегающие металлопластиковые окна и входная металлическая дверь. Для получения более подробной информации позвоните по тел. +7(928)141-08 25 , а так же ждем Вас в нашем офисе по адресу: г. Таганрог, ул. Чехова, д. 322.
Срок сдачи: 3 кв. 2025 г.
Срок сдачи: 3 кв. 2025 г.
Площади квартир
Этажность
Класс жилья
Корпусов
Стены