Ростовская область, Таганрог, ПМК м-н, улица Маршала Жукова, 1д
Площадь
Жилая
Кухня
Отделка
Класс жилья
Комнат
Номер кв.
Этаж
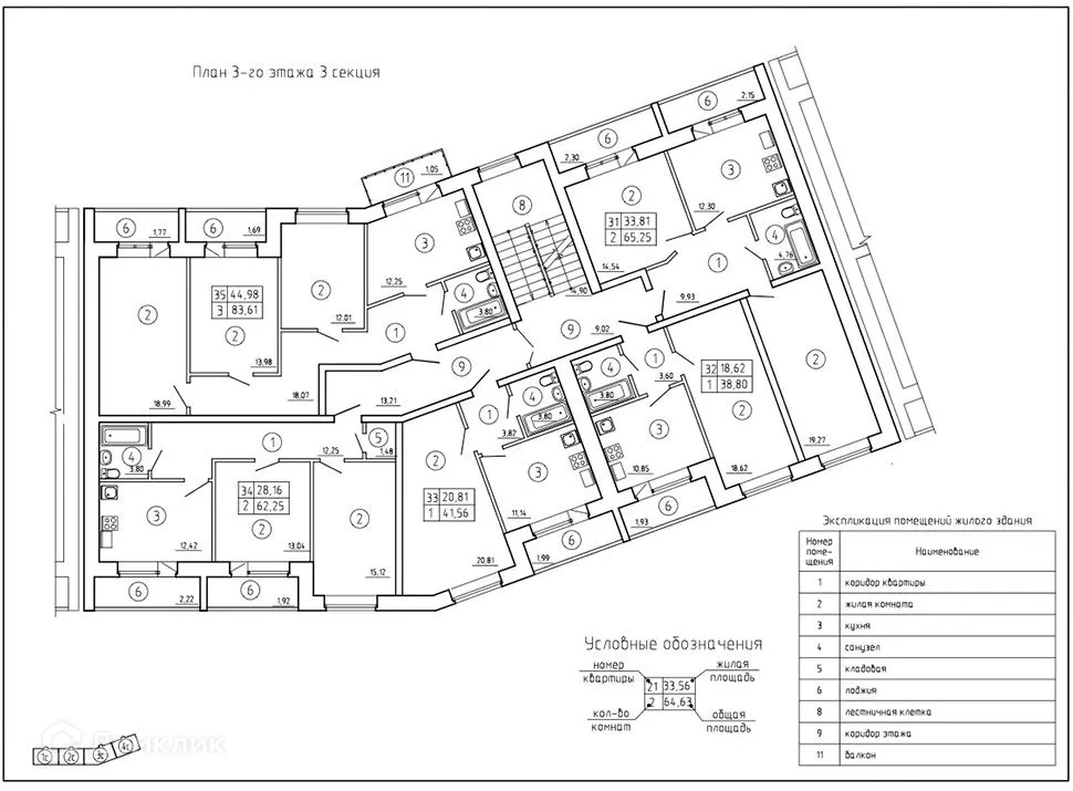
В продаже 2-комнатная квартира в новом жилом комплексе "ЖК Дом по ул Маршала Жукова д. 1-Д" 🏢. Квартира расположена на 3-м этаже 4-этажного дома. Прекрасный выбор для инвестиций.
Чтобы забронировать эту квартиру бесплатно и зафиксировать цену — свяжитесь с нами прямо сейчас! 📞
Дом по улице Маршала Жукова представляет собой кирпичное здание. Застройщиком спроектированы квартиры с различными планировками. Дом по улице Маршала Жукова представляет собой кирпичное здание. Застройщиком спроектированы квартиры с различными планировками. Чистовая отделка не выполняется. Благоустройство прилегающей территории включает в себя организацию детских игровых и спортивных площадок, гостевой автостоянки, а также озеленение. В пешей доступности располагаются учебные заведения, продовольственные магазины, остановки общественного транспорта. Ввод объекта в эксплуатацию запланирован на 4 квартал 2024 года.
Срок сдачи: 4 кв. 2024 г.
Срок сдачи: 4 кв. 2024 г.
Площади квартир
Этажность
Класс жилья
Корпусов
Стены