Ростовская область, Таганрог, ПМК м-н, 1-й Новый переулок, 18г
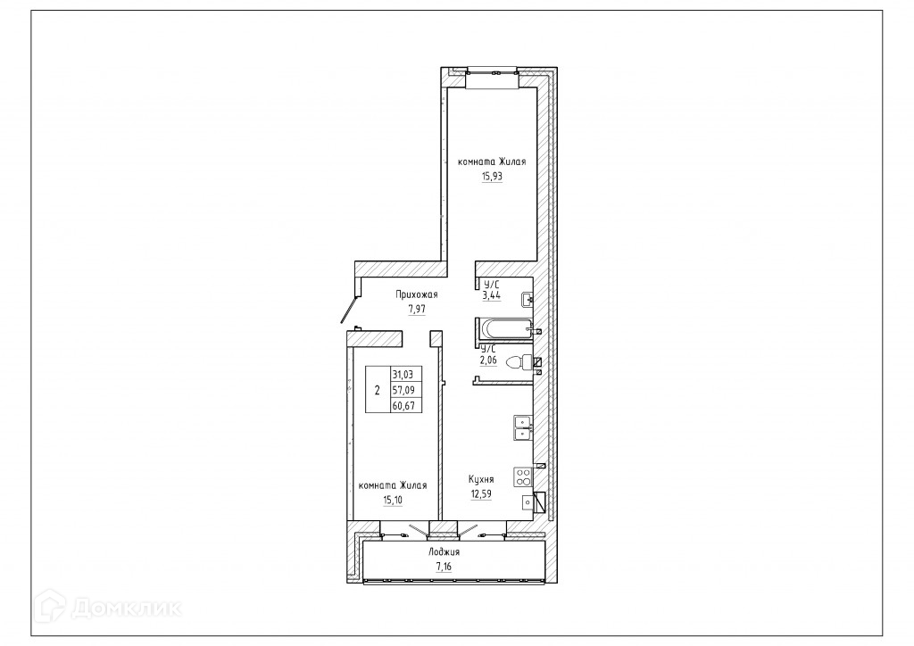
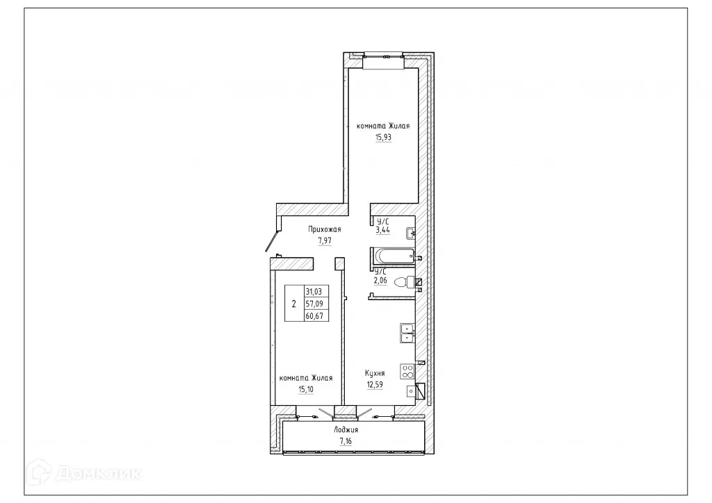
Площадь
Жилая
Кухня
Отделка
Класс жилья
Комнат
Номер кв.
Этаж
Продается 2-комнатная квартира в современном жилом комплексе "ЖК Северная звезда" 🏢. Квартира расположена на 1-м этаже 9-этажного дома. Прекрасный выбор для инвестиций.
Для бесплатного бронирования и проверить актуальную стоимость — свяжитесь с нами прямо сейчас! 📞
ЖК «Северная звезда» - это 8-ми этажный многоквартирный жилой дом, расположенный в экологически чистом районе на Северном жилом массиве (СЖМ), в районе ПМК по адресу: пер. 1-й Новый, 18 г. Жилой дом состоит из 4-х подъездов и 152 квартир. Жилой дом будет окружен благоустроенной территорией с озеленением, детской и спортивной площадками. Строящийся дом располагается в микрорайоне с развитой инфраструктурой: недалеко от участка располагается школа №23, детский садик, поликлиника №2, отделение связи, сберегательный банк, аптеки, продуктовые и промтоварные магазины, торговый центр.
Срок сдачи: 2 кв. 2024 г.
Срок сдачи: 2 кв. 2024 г.
Площади квартир
Этажность
Класс жилья
Корпусов
Стены